contact@bettertinyhouses.org
TINY HOUSE ON WHEELS FOR SALE
The NORTHERN FLICKER
Starting at:
$45,000
Built in:
Tennesse

This amazing new 1 bedroom 1 bath tiny home with a loft is priced to sell quickly. I can also help with delivery and set up if needed. It’s an 11 ft x 35 ft true park model tiny home built by Platinum Cottages. Everyone looks for a layout which comfortably and efficiently supports life’s activities in the provided 399 square feet, this is it! With 100 amp service, full sized fridge and stove built with ample storage, a 8 ft porch and copper metal roof this home will last a lifetime and is set up great for both full time living or as a weekend get away.

Specifications

BASE PRICE(USD)
$45,000
sqaure root
430
Sleeps
2
Layout
1 Lof
Sleeps
Up to 2
Layout
1 Lof

The Details:

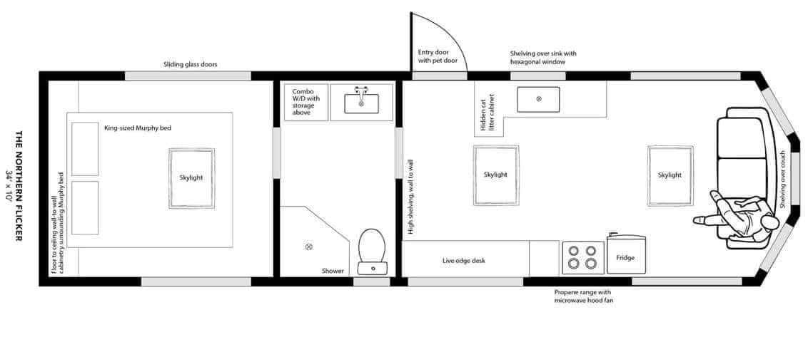
THE NORTHERN FLICKER
34’ X 10’ TINY HOUSE

Say hello to the 34’ x 10’ Northern Flicker tiny home! With the 2’ bay window extension in the living room taking this tiny home up to 36’ in length. This home is designed for full-time living and is packed full of storage with cat-friendly features and all of the amenities of a full-sized home.

Highlights include:

queen sized Murphy bed with wall-to-wall and floor-to-ceiling cabinetry

hexagon feature window over the kitchen sink

pet door installed in the main entry door

hidden kitty litter box area

custom painted cabinetry throughout

live-edge acacia desk space in front of a huge window for a comfortable work-from-home setup

acacia butcher block countertops

acacia engineered hardwood flooring

three large skylights

7’ storage loft over the bathroom for extra space

custom hexagonal tiled flooring in the bathroom

lots of built-in shelving

cedar exterior finishings and fir interior features

full-sized propane range

microwave/hood fan combo

full-sized fridge

propane on-demand water heat

combo W/D

wall-mounted electric heat

Dwarf 3kW lite wood stove (not pictured here)

Separett composting toilet

Pricing at $45,000
Holding deposit $2000
Financing available
Reservation fee:$1000

Our Thoughts

Our Rating

Layout: 9/10
Design: 10/10
Quality: 10/10
value: 10/10
OVERALL RATING
9.2 / 10